$3,590,000 MXN
CASA EN VENTA EN MERIDA, YUCATAN, PRIVADA NADIRA, CASA NARA
Conkal
324 mts2
Descripción
Exclusiva privada ubicada al norte de Mérida, rodeada de desarrollos residenciales de primer nivel, como la Privada Zelena, Privada Otavia, Residencial Maeba, la Privada San José Tulipanes, Privada Albarella, Residencial Kanan, entre otros. La zona se encuentra en constante crecimiento y ganando plusvalía día tras día, por lo que la inversión se considera garantizada y sumamente rentable.
Se encuentra a 3 minutos de la carretera Mérida-Motul, a 16 minutos del Periférico de Mérida, a 18 minutos de la Universidad Modelo, a 20 minutos de Plaza Altabrisa y el Hospital Starmedica, y a sólo 36 minutos de la costa yucateca con el Puerto de Chicxulub.
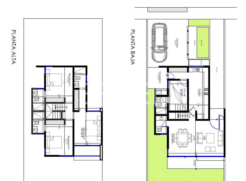
DESCRIPCION
PLANTA BAJA
Sala / comedor
Cocina amplia con alacena.
Medio baño de visitas.
Cuarto de servicio con baño.
PLANTA ALTA
Recámara principal con baño y espacio para clóset vestidor.
Recámara junior 1 con baño y espacio para clóset de pared.
Recámara junior 2 con baño y espacio para clóset de pared.
EXTERIOR
- Cochera sin techo para 2 autos.
-Área de lavado techada.
- Terraza.
AMENIDADES
Vialidades asfálticas, un solo sentido con 3 retornos en concreto pulido
Banquetas en ambos lados
Barda Perimetral
Pista de jogging de aproximadamente 900mts de distancia
30 cajones de estacionamiento distribuidos en las áreas verdes de la privada
Áreas de lectura al aire libre
Parque con juegos infantiles
Terraza techada con baño para reuniones sociales de 40 personas aproximadamente
Cancha de futbol 5
Media cancha de básquetbol
Áreas verdes y parques para que vivas momentos inolvidables en familia
Caseta de vigilancia con acceso controlado
Baño especial para caseta de vigilancia o para servicio de mantenimiento de la privada
Entrega Inmediata
Cuota de mantenimiento: $1,350
METODO DE PAGO
Apartado: $10,000
Enganche: 20%
Precio sujeto a cambio sin previo aviso
Ubicación
Conkal
Propiedades similares
$4,080,000 MXN
308 m2
$3,100,000 MXN
208.8 m2
