$3,269,000 MXN
CASA EN VENTA EN MERIDA YUCATAN DZITYA ZENNOVA
Dzityá
Alberca
Privada
Descripción
Privada de departamentos y townhouse ubicados en Dzitya. Ubicada en la zona norte de la ciudad de Mérida y con accesos inmediatos a centros comerciales, escuelas, hospitales, etc.
PLANTA BAJA
Cochera
Sala
Comedor
1/2 baño
Cocina
Área de lavado
Terraza
Alberca
Jardín
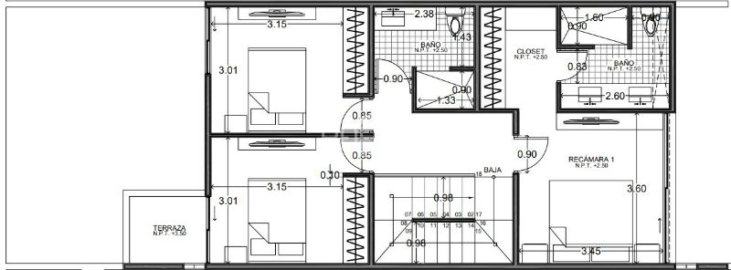
PLANTA ALTA
3 recámaras
2 baños
AMENIDADES
Portón electrico
Áreas verdes
Piscina
Deck
Estacionamiento de visitas
Área de basura
Terraza/bar
ENTREGA: octubre 2024
METODO DE PAGO
ANTICIPO 30%
Mensualidad 15 meses
*Precio sujeto a cambio sin previo aviso
**El precio no incluye los gastos de escrituración, avalúo, ni cuotas de mantenimiento.
***Todas las ilustraciones son una representación gráfica para formar una imagen cercana al producto final, la cuales podrían tener ajustes o modificaciones. Las decoraciones, muebles, luminarias y accesorios utilizados no están incluidos en la entrega, a menos que se estipule por escrito que son parte de la entrega final.
Ubicación
Dzityá
Propiedades similares
$2,850,000 MXN
87 m2
CASA EN VENTA EN MERIDA, YUCATAN, CONKAL, PRIVADA SAUCES DIECISEIS.
Ver propiedad
$2,930,000 MXN
106 m2
CASA EN VENTA EN MERIDA, YUCATAN EN THULA CITY HOMES, CHOLUL
Ver propiedad
